À L’ORIGINE
1878
À L’ORIGINE
Supervisé par l’architecte Édouard-Jules Corroyer, création du siège de l’ancien Comptoir National d’Escompte de Paris.






* nouveau chapitre
* quartier iconique
*grands espaces
*dernières collabs
*bons plans





* nouveau chapitre
* quartier iconique
*grands espaces
*dernières collabs
*bons plans

* nouveau chapitre
1878
Supervisé par l’architecte Édouard-Jules Corroyer, création du siège de l’ancien Comptoir National d’Escompte de Paris.

1800
Grâce à la reproduction à l’identique de sa façade monumentale, Le pavillon du Comptoir National d’Escompte est présenté au public sur le Champs de Mars lors de l’expo Universelle à Paris

2007
BNP Paribas, héritier du CNEP rénove tout l’ilôt Bergère et obtient la certification HQE.

2022
PCA-STREAM réhabilite l’immeuble Bergère afin de moderniser le bâtiment en tenant compte des enjeux cruciaux de notre époque.

2026
Découvrez le résultat de l’ambitieuse transformation de cet actif qui invite à vivre autrement et à penser le bureau différemment.


L’ARCHITECTURE SELON
Philippe Chiambaretta est l’architecte fondateur du Cabinet PCA Stream, l’agence qui a réhabilité l’immeuble Bergère afin de moderniser le bâtiment en tenant compte des enjeux cruciaux de notre époque. Ce projet a été mené en deux étapes. La première en « think tank » avec un laboratoire de recherche dédié à l’innovation et la deuxième phase en « do tank » pour une phase de production et de construction.

AFIN DE RESPECTER SES ENGAGEMENTS
EN TERMES DE RESPONSABILITÉ ENVIRONNEMENTALE,
BERGÈRE VISE LES CERTIFICATIONS
ET LES LABELS LES PLUS EXIGEANTS.


* nouveau chapitre
1878
Under the supervision of architect Édouard-Jules Corroyer, the headquarters of the former Comptoir National d’Escompte de Paris is created.

1800
Via an identical reproduction of its monumental facade, the Pavilion of the Comptoir National d’Escompte is presented to the public on the Champ de Mars at the Universal Exhibition in Paris.

2007
BNP Paribas – the heir of the CNEP – renovates the entire Bergère unit and obtains HQE certification.

2022
PCA-STREAM redevelops the Bergère building, modernising it while also considering the crucial issues of our time.

2026
Explore the result of the ambitious transformation of this asset, which invites each of us to live differently and change the way we think about the office.


THE ARCHITECTURE, BY
Philippe Chiambaretta is the architect who founded PCA Stream, the agency refurbishing Bergère to modernise the building while making allowance for the crucial issues of our time. This project was carried out in two stages. The first was in the form of a “think tank”, with a research laboratory focused on innovation, and the second phase as a “do tank” for a production and construction phase.

TO MEET ITS ENVIRONMENTAL
RESPONSIBILITY COMMITMENTS,
BERGÈRE IS AIMING FOR THE MOST DEMANDING
CERTIFICATIONS AND LABELS.


* quartier iconique
Entre l’opéra et les grands boulevards, Bergère, une destination iconique.
Depuis Bergère
Grands Boulevards
2 min
1 min
Strasbourg-St-Denis
10 min
2 min
Opéra
15 min
5 min
Châtelet-Les Halles
17 min
6 min

Depuis Bergère
Gare du Nord
10 min
7 min
Châtelet-Les Halles
14 min
12 min
Charles de Gaulle-Étoile
15 min
20 min
La Défense
21 min
40 min




Vous n’avez
plus à choisir
entre un beau
cadre de travail
ou un magnifique
cadre de vie




Entre bonnes
adresses
et belles
idées le 9e est
une source
d’inspiration
infinie


Gastronomie,
shopping, théâtre
et concert :
vivez des expériences
variées tout au long
de l’année



* quartier iconique
Located between the Opera and the Grand Boulevards, Bergère is an iconic destination.
From Bergère
Grands Boulevards
2 min
1 min
Strasbourg-St-Denis
10 min
2 min
Opéra
15 min
5 min
Châtelet-Les Halles
17 min
6 min

From Bergère
Gare du Nord
10 min
7 min
Châtelet-Les Halles
14 min
12 min
Charles de Gaulle-Étoile
15 min
20 min
La Défense
21 min
40 min




Now you don’t
have to choose
between a beautiful
work environment
and a magnificent
living space




The 9th arrondissement
is a never-ending source
of inspiration for great destinations
and bright ideas


Fine dining, shopping, theatre
and concerts:
a variety of experiences
all year round



* dernières collabs
Bergère accueille de nombreuses performances dans un spectre très large due à ses prestations hors normes.




Janvier 2025
Bergère a exceptionnellement ouvert
ses portes pour accueillir la conférence
de presse de présentation de l’édition
2025 du MIPIM.
Novembre 2024
Pendant la Fashion Week, Uma Wang a présenté
sa collection printemps-été 2024 au sein de Bergère.
Une collection où des matières organiques étaient
détournées de manière ludique. Un défilé sublimé
par l’architecture.
Novembre 2024
Le nouveau spot TV Beyond/Jordan Brand
a transformé la Salle des pas perdus en playground
où les meilleurs joueurs de basket de la planète
se sont donné rendez-vous pour quelques dunks,
sous les yeux du maître de la catégorie…
Michael Jordan.
Novembre 2024
Bergère collabore avec le street artist français
très convoité Jordane Saget pour exprimer
toute sa créativité.

* dernières collabs
The exceptional services offered by Bergère enables it to host numerous events across a very broad spectrum.




January 2025
Bergère opened
its doors for an exclusive press
conference unveiling ’the 2025
edition of the MIPIM real estate event..
November 2024
During Paris Fashion Week, Uma Wang revealed
her spring-summer 2024 collection at Bergère.
In the collection, organic materials were
playfully subverted. The show was magnificently
complemented by the architecture.
November 2024
The latest Beyond x Jordan brand commercial
turned the Salle des Pas Perdus into a basketball
court where some of the world's top players
gathered to nail a few dunks,
under the watchful eye of the legend,
Michael Jordan.
November 2024
Bergère collaborates with highly sought-after
French street artist Jordane Saget, giving free rein
to his creativity.

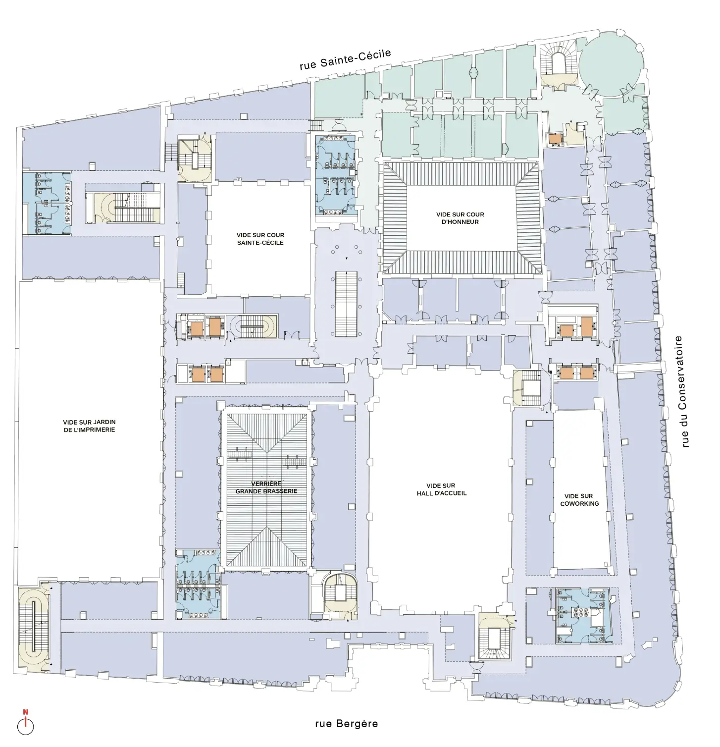
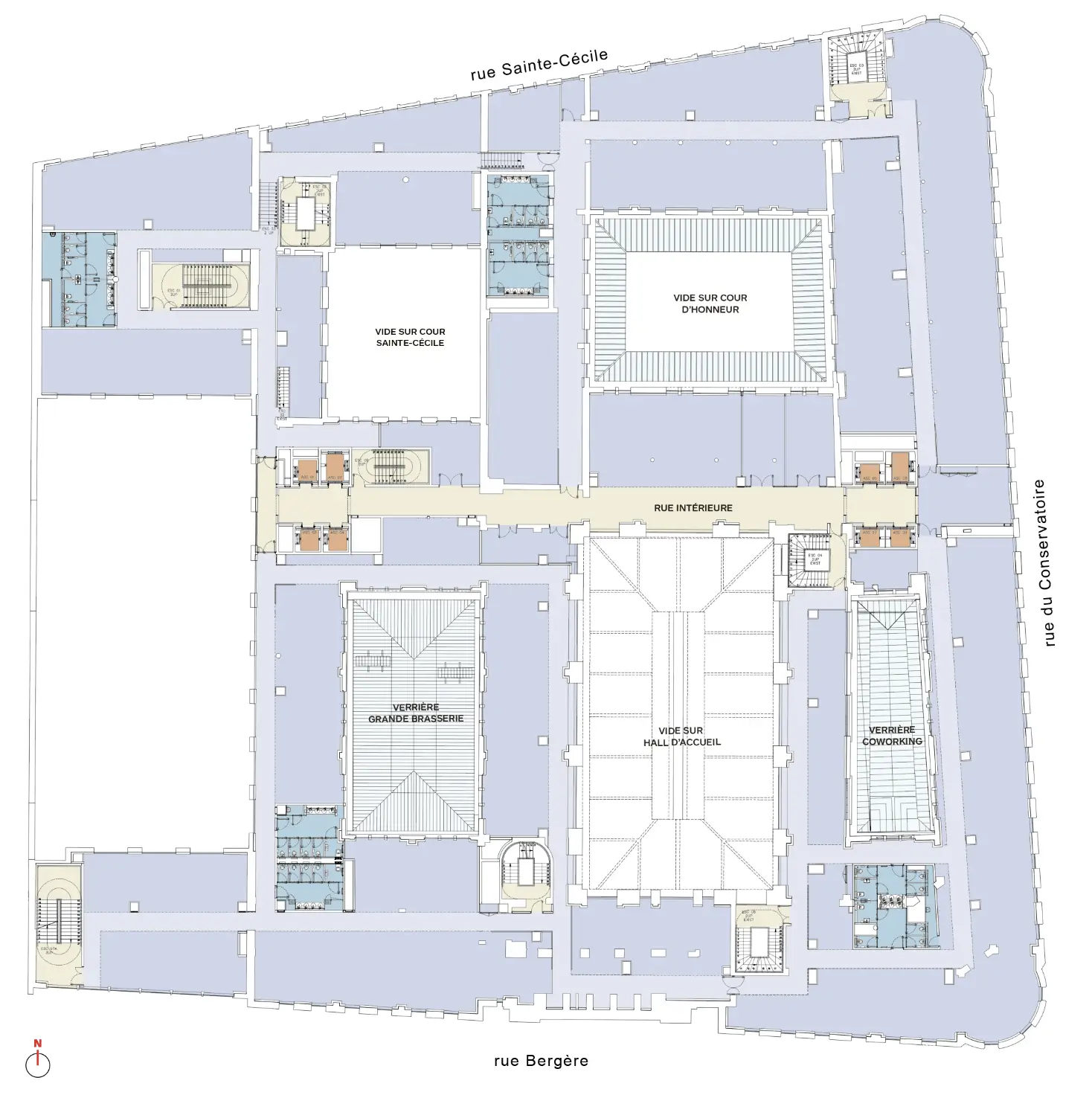
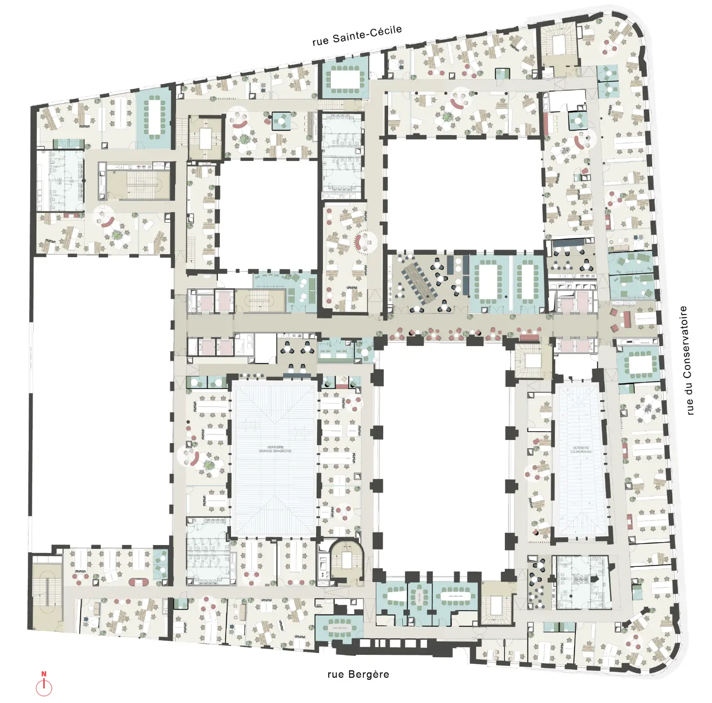
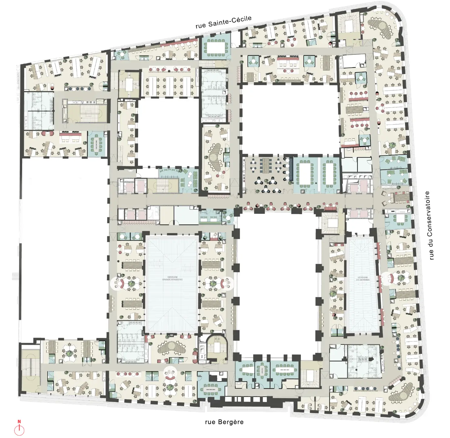
* grands espaces





La salle des pas perdus,
un hall prestigieux
digne d'un grand hôtel
Le lobby de Bergère
est au centre de toutes
les connexions.
L’atrium permet un accueil
privatif au cœur
de vos espaces de bureaux
m²surface
d’un plateau courant
capacitaire moyen
d’un plateau courant
Plateaux RDC
côté rue du conservatoire
Plateaux R+4
Bâtiment imprimerie
Plateaux R+3
Bâtiment imprimerie

grande Brasserie

Parisarium

medialab

Fitness

atelier vélos

restaurant Sainte-Cécile

business Center

Le Foyer

L’auditorium

multi purpose room

* grands espaces





The Salle des pas perdus:
a prestigious concourse
worthy of a great hotel
The Bergère lobby is
at the heart of
all connections.
The atrium provides
a private reception area
at the heart of your office space
m² typical
floor area
Average area for a
typical floor
Ground floor
on the Rue du Conservatoire side
4th floor spaces
Imprimerie building
3rd floor spaces
Imprimerie building

Grande Brasserie

Parisarium

Medialab

Fitness

Bicycle workshop

Sainte-Cécile restaurant

Business Center

The Foyer

Auditorium

Multi-purpose room

*bons plans
136 pers. (effectifs permanents)
592 pers. (effectifs complémentaires public)*


535 pers.


535 pers.






212 pers.


52 pers. (bureaux)
100 pers. (Parisarium)*



*bons plans
136 pers. (permament occupancy)
592 pers. (additional public occupancy)*


535 pers.


535 pers.






212 pers.


52 pers. (offices)
100 pers. (Parisarium)*

